Property Details
Private Canada Creek Ranch Hunter's Paradise with Endless Outdoor Adventure
A Hunter's Paradise—Your Northern Michigan Escape---Welcome to a true sportsman's retreat—a rare opportunity to own property within Canada Creek Ranch, a private outdoor paradise offering more than 11,000 acres of member-only land. This home sits on three CCR parcels and borders state land, giving you unmatched access to wilderness, wildlife, and endless recreation. Step out your door and enjoy direct access to thousands of acres—prime habitat for whitetail deer, elk, bear, turkey, and more. It doesn't get more ''Up North'' than this.
Your Northern Michigan Escape at Canada Creek Ranch
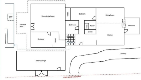
This beautifully cared-for 3-4 bedroom, 1.5 bath home offers the perfect blend of comfort and outdoor living. Expanded in 1976 and remodeled in 2002, it features an open, inviting layout with a spacious kitchen, cozy dining and sitting area, and a comfortable family room perfect for gathering with loved ones. Upstairs, a loft bedroom with built-in bunks provides the ideal extra sleeping space for guests or grandkids.
A two-level, 2-car garage (built in 1976) includes additional overhead storageperfect for ATVs, gear, tools, and seasonal toys.
Canada Creek Ranch offers exclusive access to:
Five private lakes
A blue-ribbon trout stream renowned by fly fishermen
Miles of trails winding through oak ridges and pine forests
Premier hunting for deer, elk, bear, grouse, woodcock, coyote, and more
Whether you're seeking a year-round residence, family getaway, or dedicated sportsman's retreat, this property is the best of Northern Michigan living, where comfort meets adventure.
Recent updates: all old windows replaced, new faucets in kitchen & bath, upgraded electrical in garage, fuse panel replaced with new breaker panel, newer fridge, washer, dryer, and dishwasher, and new flashing on the house (completed within the last couple of years).
Furnishings negotiable; some items may be left at the seller's discretion.
Canada Creek Ranch Ownership Includes:
Groomed snowmobile trails & miles of 2-track trails
Elk guide services
Shooting range with pavilion, shotgun range, and archery range
Swim beach & picnic pavilion on Lake Geneva
Playground, tennis courts, rental cabins & 112-lot campground with bathhouse
Motel-style guest lodging at the clubhouse
Restaurant/dining room overlooking Lake Geneva, gift shop, community room
Private fire department & security patrol
Buyer must begin the membership process immediately after purchase. Membership packets are available at the clubhouse.
Learn more at: WWW.CANADACREEKRANCH.COM
All old windows replaced, new faucets in kitchen and bath, electrical replaced in garage, replaced old fuse box with new electrical panel, newer fridge, washer, dryer, and dishwasher, plus new flashing on house. Updates have been made over the last couple of years.
Property Features
- Canada Creek Ranch Home 4sale
- 3-4 Bedroom Home w/ Loft
- 2-Level Garage w/ Storage
- Modern updates through Home
- Canada Creek Ranch - 5 Lakes
- Blue-Ribbon Trout Stream
- Clubhouse, Campground, Trails
- Shooting & Archery Range
- Country Homes
- Fishing
- Hunting
- Lakefront Property
- Recreational Property
Property Amenities
- Community Activities
- Large Kitchen
- Storage
- Fireplace
- Deck
- Patio
- Finished Basement
- Water Access
- View
- Outbuildings
- Appliance
- Sewer
